Skip to main content

Specification Data Sheet

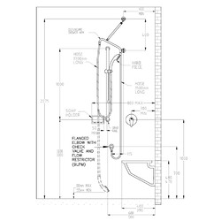
The Galvin ClevaCare® shower kit for assisted showering was developed to reduce mental and physical stress for patients and their caregivers allowing for a safe and pleasant experience. It's extendable and retractable spring arm with a pivot joint, allowing the caregiver to easily maneuver around the patient achieving a more thorough clean thanks to the greater reach. At the same time, it offers the patient a more comfortable and dignified experience while meeting strict occupational health and safety requirements.

Using the Galvin ClevaCare® shower kit not only minimises the risk of infection or cross-contamination from dragging the hose on the floor or across a patient’s body but also eliminates the distress for people who dislike foreign objects touching their skin.

Features

  • Brass swing arm with stainless steel spring
  • Stainless steel fasteners
  • 1000mm x 32mm hygienic stainless steel grab rail with pull rod
  • High polished chrome plate finish for added durability and easy cleaning
  • Tough white ABS handpiece
  • Flexible smooth PVC reinforced white hoses
  • Chrome brass slide cradle with height adjustment pull rod
  • AS 1428.1 accessible compliant when installed following AS 1428.1 guidelines

Technical Information

  • WELS: 3 Star Rating (8.5L/min)
  • Nominal Flow Rate (LPM): 8.24
  • WaterMark: AS 3718 Lic. WMKA0034
  • Inlet: 15 BSP - Female
  • Outlet: Handheld Shower
  • Headwork: Ceramic Cartridge
  • Operating Temperature Range (°C): 5 Min - 55 Max
  • Operating Pressure Range (kPa): 150 Min - 500 Max
  • Finish: Chrome

Alternative Product Options

  • CLEVAKIT1 GalvinAssist® Hand Shower Kit with 900 x 32mm SS Hygienic Grab Rail, ClevaCare® Shower & CliniLever® Taps
  • CLEVAKIT2 GalvinAssist® Hand Shower Kit with 900 x 32mm SS Hygienic Grab Rail, ClevaCare® Shower & CliniLever® Single Lever Mixer
  • CLEVAKIT3 GalvinAssist® Hand Shower Kit with 1000 x 32mm SS Grab Rail, Pull Rod, ClevaCare® Shower & CliniLever® Taps
  • CLEVAKIT1CP GalvinAssist® CP Hand Shower Kit with 900 x 32mm SS Hygienic Grab Rail, ClevaCare® Shower & CliniLever® Taps
  • CLEVAKIT2CP GalvinAssist® CP Hand Shower Kit with 900 x 32mm SS Hygienic Grab Rail, ClevaCare® Shower & CliniLever® Single Lever Mixer
  • CLEVAKIT3CP GalvinAssist® CP Hand Shower Kit with 1000 x 32mm SS Grab Rail, Pull Rod, ClevaCare® Shower & CliniLever® Taps
  • CLEVAKIT4CP GalvinAssist® CP Hand Shower Kit with 1000 x 32mm SS Grab Rail, Pull Rod, ClevaCare® Shower & CliniLever® Single Lever Mixer
  • CLEVA010 ClevaCare® CP-BS Shower Arm
  • CLEVA020 ClevaCare® CP-BS Shower Arm with 600 Inlet & 1700 Outlet Hoses - High Wall Outlet
  • CLEVA025 ClevaCare® CP-BS Shower Arm with 1500 Inlet & 1700 Outlet Hoses - Low Wall Outlet
  • CLEVA030 GalvinAssist® Hand Shower Kit with 900 x 32mm SS Hygienic Grab Rail, ClevaCare® Shower - High Wall Outlet
  • CLEVA035 GalvinAssist® Hand Shower Kit with 900 x 32mm SS Hygienic Grab Rail, ClevaCare® Shower - Low Wall Outlet
  • CLEVA040 GalvinAssist® Hand Shower Kit with 1000 x 32mm SS Hygienic Grab Rail, ClevaCare® Shower & Pull Rod - High Wall Outlet
  • CLEVA045 GalvinAssist® Hand Shower Kit with 1000 x 32mm SS Hygienic Grab Rail, ClevaCare® Shower & Pull Rod - Low Wall Outlet
  • CLEVA050 GalvinAssist® Hand Shower Kit, Inverted T 700 x 1100mm SS Hygienic Grab Rail, ClevaCare® Shower - Low Wall Outlet (LH)
  • CLEVA055 GalvinAssist® Hand Shower Kit, Inverted T 700 x 1100mm SS Hygienic Grab Rail, ClevaCare® Shower - Low Wall Outlet (RH)
  • CLEVA060 GalvinAssist® Hand Shower Kit, Inverted T 700 x 1100mm SS Hygienic Grab Rail, ClevaCare® Shower - Low Wall Outlet (Centre)
  • CLEVA020CP ClevaCare® CP-BS Shower Arm with CP 600 Inlet & 1700 Outlet Hoses - High Wall Outlet
  • CLEVA025CP ClevaCare® CP-BS Shower Arm with CP 1500 Inlet & 1700 Outlet Hoses - Low Wall Outlet
  • CLEVA035CP GalvinAssist® CP Hand Shower Kit with 900 x 32mm SS Hygienic Grab Rail, ClevaCare® Shower - Low Wall Outlet
  • CLEVA045CP GalvinAssist® CP Hand Shower Kit with 1000 x 32mm SS Hygienic Grab Rail, ClevaCare® Shower & Pull Rod - Low Wall Outlet

Environmental Sustainability

We are ISO 14001 certified and take sustainability seriously. Our products are environmentally responsible designed to be healthier for users, save water and/or energy, and minimise carbon footprint. Our target is to reduce our carbon footprint by 25%, and the use of non-recyclable/non-compostable materials across the company (e.g. plastics) by 50%.

Warranty

Galvin Engineering products are covered under our Manufacturer's Warranty. Galvin Engineering products must be installed in accordance with the installation instructions and in accordance with AS 3500 and NCC Volume Three, relevant Australian Standards and local authorities applicable to product being installed. Water and electrical supply conditions must also comply to the applicable national and/or state standards, failing to comply with these provisions may void the product warranty and affect performance of the product.

Please visit www.galvinengineering.com.au to view the full warranty, our Installation Compliance and Maintenance & Cleaning information as well as any other additional information.

While all reasonable care has been taken in compiling the information in this document, the designs, dimensions and products shown are indicative only and should not be relied upon without our prior approval. Due to our policy of continuous development, we reserve the right to alter any details of specifications or products without notice. All information, drawings, technical specifications and product designs remain the property of Galvin Engineering Pty Ltd.